Архитектор-дизайнер
Irina
Архитектор-дизайнер
На сайте с 26-09-2022
Беларусь
Оплата: 1000 руб/час.
Категории:
(5) Дизайн, полиграфия
(15) Архитектура, интерьер

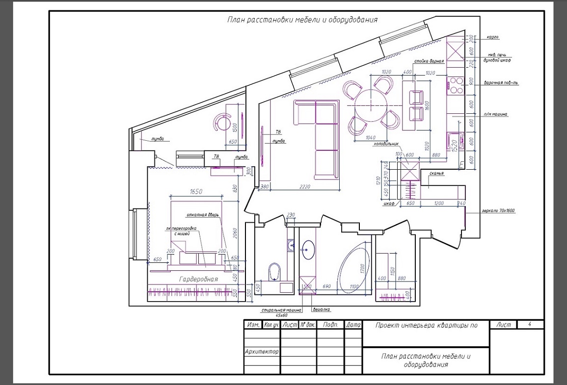
Портфолио: Архитектор-дизайнер

Ключевые навыки- AutoCAD, ArchiCAD

О СЕБЕ

18.10.1985 г.р., 36 лет, замужем. Удаленная работа, проектная работа, частичная занятость

НАВЫКИ

Пользователь ПК
Разработка проектной документации

ЛИЧНЫЕ КАЧЕСТВА

Порядочность
Старательность
Ответственность

ЯЗЫКИ

Русский
Английский
Немецкий
Польский

ТЕХНИЧЕСКИЕ НАВЫКИ

archicad
autocad
Adobe Photoshop
3ds max

ОБРАЗОВАНИЕ

Брестский государственный технический университет, Брест(год окончания 2008)
Факультет - строительный, архитектура

ОПЫТ РАБОТЫ

Опыт работы 11 лет 9 месяцев.